+86 15152237223
无锡迈勒环保科技有限公司
电话:+86 15152237223
电话:+86 13921129353
邮箱:wuximiner@126.com
地址:江苏省无锡市惠山区阳山镇

无锡迈勒环保科技有限公司
电话:+86 15152237223
电话:+86 13921129353
邮箱:wuximiner@126.com
地址:江苏省无锡市惠山区阳山镇
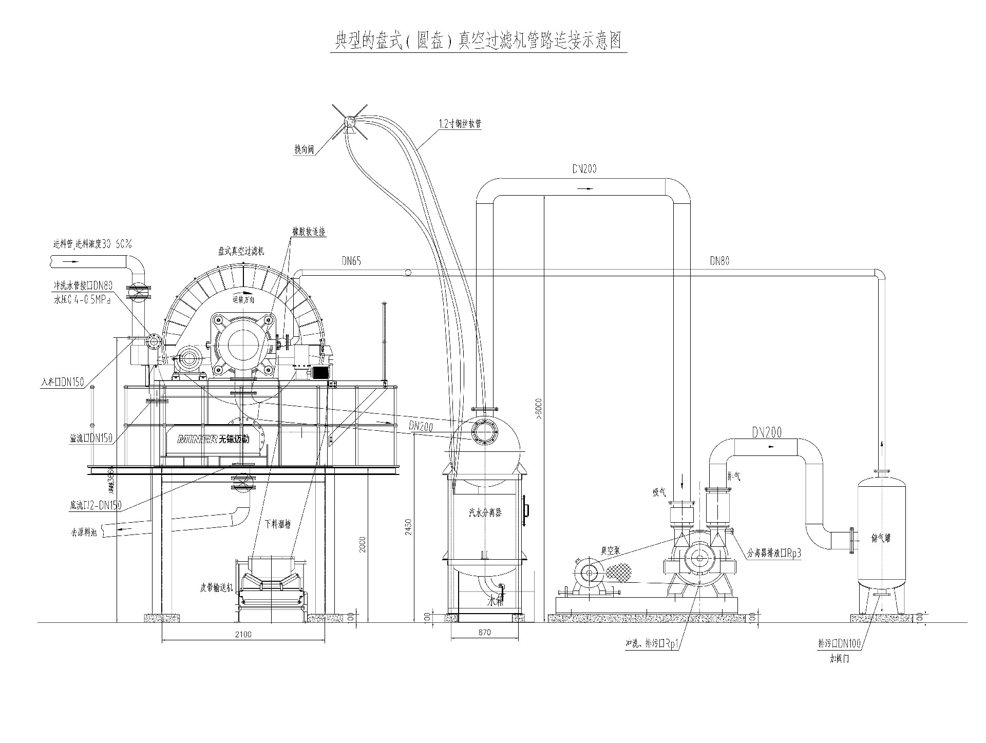
盘式(圆盘)真空过滤机系统在安装过程中一定要保证管路连接正确、水力坡度合理、管径合适几大原则。具体如下:
1、过滤机主机管路
入料管。入料管安装手动或自动调节阀门。
溢流管路。溢流管路常开,连接至污水池或返料池。
底流管路。底流管常闭,加装手动或自动阀门,和溢流管路合并,一起连接至污水池或返料池。
2、抽真空管
过滤机分配头—汽水分离器部分。过滤机分配头接口处一定要加软连接。该管路要向汽水分离器方向放不小于3%的坡度,避免液体积液或回流。严格保证管道密封性。
汽水分离器—真空泵吸气口。该管路要保证架空高度,确保液体在汽水分离器内依靠自身重力能排液而不被抽走。如图所示。
3、气水分离器排液管
滤液经过气水分离器下部的盖板阀自动交替排出,由水箱收集后统一管道输送至滤液池或循环水池等。
4、真空泵管路
真空泵工作液管路。目前采用的真空泵多是水环式真空泵,它工作时需要连续注入液体(水),不同型号的真空泵的工作液需求量不一样,具体以厂家要求为主。工作液要求清水,压力0.05MPa左右。
真空泵分离器排液管路。常开,管路连接至污水池。
真空泵工作液排空管路。真空泵长时间停机或冬季停机后,泵体内的工作液需要排尽,管路自留至污水池。
5、反吹风管路
真空泵排气口(罗茨风机)—反吹风风包。常开管路。
反吹风风包—过滤机分配头。过滤机分配头反吹风接口处加装软连接和调节阀门。
反吹风风包排污口。管道连接至污水池,加装调节阀门。
6、换气管路
换气阀四个接口,下面一个接口排空,上面一个接口连接至汽水分离器上部罐体,中间左右两个接口连接至汽水分离器下部两个罐体。
更多关于盘式(圆盘)真空过滤机的问题可以咨询:
无锡迈勒环保科技有限公司
官方网站:www.wxminer.com
咨询电话:13921129353